当前的可编程序控制器(PLC),是专为工业环境下应用而设计的工业控制计算机,已经成为控制系统中应用最广泛的核心位置,它不仅能实现复杂的逻辑控制,还能完成各种顺序或定时的闭环控制功能,并且抗干扰能力强、可靠性高、稳定性好、体积小,能在恶劣环境下长时间、不间断运行,且编程简单,维护方便,并配有各类通讯接口与模块处理,扩容方便。
1石灰石粉磨工艺简介
石灰石粉磨是制备石灰石粉保证石灰石粉品质最为关键的工艺设备。它由磨辊、磨盘、减速机、选粉机、主电机、辅传电机、密封风机、张紧结构、液压润滑站、冷却水组成。
整个生产过程中包括各关键点的数据采集和记录、工艺流程的切换、冷却水泵的切换控制、选粉机的转速控制、液压润滑站的压力控制、石灰石粉磨内的温度、差压及料位控制、生产设备运行状态的监控等,如此多的设备和复杂的工艺运行操作,需要复杂的自动化控制。如下图:(目前#1线已投入生产,#2线正在筹备中)

2石灰石粉磨生产监控系统的运行环境
(1) 在该生产过程中,有大量的物理量,如温度、压力、料位、流量等模拟量参数,需要通过PLC对这些参数进行实时采集和处理。
(2) 整个生产过程的模拟量自动控制和故障诊断。
(3) 整个流程的顺序控制和实时报警、联锁保护停机。
3控制系统结构
石灰石粉磨的控制系统采用Modicon公司生产的Quantum系列可编程序控制器。该系统由4台工业PC机与PLC通过网络交换机(冗余配置)构成物理结构为10BASE-T的局域网,工业PC机与PLC之间通过以太网进行数据通讯,数据传输率为10Mbp/s。整个控制系统由主系统和扩展系统组成,负责与现场测量和控制部分之间的数据传输,肩负着全部生产运行工艺、流程的逻辑控制、报警、联锁等。4台工业PC机均运行Windows2000 Professional操作平台,分为两台上位机操作员站,运行ifix3.5组态软件,实现监视、操作、报表打印、事故分析等功能;另外一台为工程师站,运行Quantum系列的Concept2.6组态软件,实现逻辑控制、逻辑与参数的修改、在线监视等功能;还有一台为通讯接口站,通过485电缆完成与6Kv高压综合保护的数据传输。配置结构采用双以太网的形式,保证了自动化控制系统运行的连续性,提高了设备运行的可靠性,保证了安全生产。其系统配置如下图所示。
4硬件配置
(1)为了满足工艺过程的控制要求,控制中心采用了研华的工业控制计算机,其配置为:
CPU Intel PⅣ2.4GB,内存256MB,硬盘80GB,软驱3.5in,光驱52X,彩显PHILIPS 21纯平,101键盘+光电鼠标。
(2)Modicon Quantum系列CPU-434-12
(3)Modicon Quantum系列8通道模拟量输入模块11块(包括热偶、热电阻)
(4)Modicon Quantum系列8通道模拟量输出模块2块
(5)Modicon Quantum系列32通道数字量输入模块7块
(6)Modicon Quantum系列32通道数字量输出模块3块
(7)Modicon Quantum系列以太网通讯模块2块
(8)Modicon Quantum系列远程I/0通讯模块3块(主1,从2)
(9)Modicon Quantum系列电源模块6块
组态的主要工作是完成硬件型号参数设置、I/O地址的分配、传输方式等。使用Modicon Quantum系列PLC的专用编程软件Concept2.6进行组态。具体过程是:打开Concept2.6→File→New project,双击PLC Selection选CPU型号→OK,双击Config Extensions→双击Select Extensisns→双击Select Extensisns,在出现的对话框TCP/IP处选择以太网网络数目→OK。双击I/O Map,点击Head setup按钮→选择RIO数,这个数为主I/O通讯模块在主站背板所占用的槽号(从I/O通讯模块在扩展柜中根据自己的意愿随意放置)→OK。
一般情况下,1和16槽放置电源模块
2槽放置CPU模块
3槽防止主I/O通讯模块
4和5槽放置冗余的以太网通讯模块
6至15槽放置I/O模块。
硬件组态图如下: 
5软件组态
在该系统中,上位机采用ifix3.5组态软件,下位机采用Modicon Quantum系列的Concept2.6编程软件。
1、 人机界面组态
(1) 工艺流程图:该画面通过编程实现动态模拟显示整个石灰石粉制备的过程——从上料、进磨到出粉再到仓储。实现整个生产过程中各个运行设备的程控启停以及各个运行设备的单体操作,并对故障进行实时诊断。
(2) 系统操作功能:它有自动和手动两种工作方式,正常运行时采用自动方式,故障和调试时采用手动方式。它由PID控制回路实现对一些重要的模拟量数据的精确控制,以达到期望值。
(3) 报警记录:实时地发出所有发生故障的参数的声光报警,提醒值班人员采取相应的措施。
(4) 实时曲线:在线监视所有重要参数的实时变化,以便提前采取维持正常参数的措施和手段。
(5) 历史曲线:检查过去的数据记录,以便发生故障时,分析出故障原因。
(6) 报表打印:按不同的时间段实现统计与计量。
2、 PLC控制程序设计
PLC采用Modicon Quantum系列
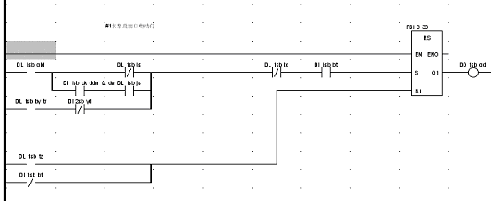
Concept2.6编程软件。Concept适用与所有的Windows操作系统,强大的梯形图面向用户,其电路图符号和表达式与继电器电路原理图非常接近,控制过程形象、直观、易于掌握、易于修改。有实用的功能块和在线仿真功能,并且不需要停止CPU运行,就可以下载修改的配置与逻辑。丰富的功能可以满足系统的各种要求。下图是冷却水泵的启动/停止逻辑:
冷却水系统由两台冷却水泵及冷却水泵出口电动门组成。两台冷却水泵一用一备,当启动其中的一台冷却水泵后,必须投入另一台冷却水泵备用,以保证这台冷却水泵故障停泵时另一台冷却水泵自启,也就保证了冷却水系统的正常运行,进而保证了石灰石粉磨系统的安全、可靠、稳定的运行。冷却水泵与冷却水泵出口电动门之间联锁,冷却水泵出口电动门在关闭位置才允许启动冷却水泵。在联锁解除时,可以单体操作冷却水泵,实现冷却水泵的检修调试。
6系统通讯功能
Modicon Quantum系列PLC可编程序控制器利用其先进灵活的通信方式,方便地组成了PLC处理器与就地控制柜、远程控制柜、计算机工作站及其电子设备之间的通讯,其通讯方式是多渠道、多方式的。
7结束语
本控制系统功能全面,可靠性高,操作简单实用,提高了劳动生产率,避免了由于操作人员操作失误而造成的事故,改善了现场操作人员的劳动条件,对提高石灰石粉磨管理水平,保证设备安全稳定运行起到了很好的促进作用。并已在生产上得到实际应用,为企业带来了可观的经济效益和良好的社会效益。
(转载《》自动化产业网)



