1 车厢类产品介绍
汽车车厢一般由底板、前板、左/右边板、后板四大部分构成。前板、边板和后板的结构通常采用1~1.5mm 钢板冲压成瓦棱板,然后焊上边框、立柱、栓钩,页板(如图1 所示)。

图1 车厢边板焊接总成
对于不同的车型,所焊边框、立柱、页板均相同,且焊接工艺相同,只是焊接位置以及立柱数量和车厢总体长度不同,这就为柔性焊接夹具的设计提供了良好的基础条件。
例如:以一套11 种产品混流生产的柔性焊接夹具设计来加以说明,其产品情况见下表:

由上图及表可知:11 种产品宽度均为550mm,只是总长度和所焊立柱数量不同。但是,第一根立柱到边框的尺寸均为270mm,最后一根立柱到边框的尺寸也是270mm。因此我们将每种产品的第一根立柱和边框分为一组,最后一根立柱和边框分为一组,其余立柱各为一组。每组的定位夹紧装置分别安装在若干组移动滑台上,以第一组滑台为基准,移动其它各组滑台来实现不同车型的定位、焊接。
2 工艺情况分析
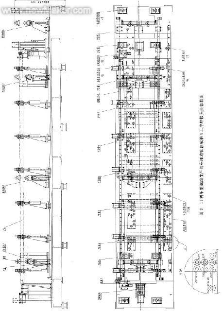
车厢边板类焊接总成一般由4 个工位来完成,整个焊接过程形成一条流水线。各工序间焊后产品的传递采用滚道式运输方式传送,滚道传输高度距地面均为900mm。下面以边板为例介绍一下各工序焊接内容。(见图2)。

图2 车厢边板总成焊接夹具流水线
1 序:瓦棱板、边板上框、边板下框焊接。
2 序:将上序合件与两个端立柱焊接。
3 序:取中立柱放入夹具中定位、夹紧,与2序合件焊接。
4 序:上序合件与页板和左/右栓钩焊接。
由上面可知:11 种系列车型产品结构有许多共同之处,许多部件零件可通用,故原有的焊接设备和专用设备完全可以通用。同时相似的产品又决定了11 种车型有了相似的焊装工艺,而二者正是实施柔性化生产焊接夹具设计的基础条件。因此该项目的混流设计不但可行,而且是最先进、最合理、最经济的举措。它不仅能节省占地面积,保持合理的工艺流程,而且能节省时间和资金,提高设备利用率,使投入资金降低70%。
3 夹具的柔性设计
通过对不同的车厢类产品和工艺进行仔细分析比较,发现车厢类产品系列化程度较好,实现车厢类焊接夹具的柔性设计方案完全可能。
图3 即为11 种车型混流生产的车厢边板总成第4 工序焊接夹具总装图。该夹具动作原理如下:首先举升机构中的气缸带动滚轮升起,使滚轮距地面900mm。将上工序焊接完成的边板分总成在侧滚轮机构的导向下,通过举升机构的滚道送入该夹具,然后举升机构中的气缸下降,使制件落入夹具中,制件定位夹紧,再将页板和栓钩放入夹具分别定位夹紧后焊接。焊接完成后,松开夹紧,退料机构将产品从页板的定位销中退出(见后面详细介绍),然后举升机构的气缸再次动作,将制件升起至900 高,输入下一工位。

当生产多种车型时,靠移动滑台改变各种产品的位置来实现不同产品的焊接。图3 为生产8502015-13Y 车型的位置,当生产8502015-11Y 车型时,工人只需将定位锁紧机构的限位销拔起,推动相关滑台移动到底板所示相应车型位置,然后插入限位销固定即可生产。由于混流生产车型较多,因此底板上的限位销孔很多,为保证更换产品时快速、准确,我们在每个销孔上贴上标签,做好产品标记。
尽管车厢类夹具由于所焊工序及所焊制件不同,致使焊接夹具有所不同,但是它的几大机构完全可以通用,我们将几大通用机构做成模块。
3.1 举升机构
举升机构是该夹具中接料和运送工件的重要功能部件。接料和运输时该机构升起,焊接时该机构落下。我们采用气动双导柱机构(见图4)。由气缸举升,双导柱导向,使滚道升起运行平稳,到位准确,结构简单可靠。

图4 举升机构
对于多种车厢产品混流生产的夹具,由于车厢产品的总长度相差很大,最多相差2 米多,因此产品重
心不确定,给设计举升机构带来了很大难度,选择合理的举升点布置举升机构是至关重要的。
图3 中举升机构1、2、3 可根据产品长度的改变移动到产品的重心位置。举升时始终保持产品的稳定性和平衡性。举升机构4 用于该工序和下一序产品退料的衔接。
3.2 侧滚轮导向机构
侧滚轮导向机构由侧滚轮和下滚轮共同组成(见图5)。每个滚轮采用深沟球轴承,运行灵活,使用寿命长。

图5 侧滚轮导向机构 图6 页板定位机构
侧滚轮导向机构用于该夹具的两端,便于接料和退料。当制件在输送线上传送时,为防止制件偏离夹具,应对产品宽度方向进行初限位,侧向滚轮既可以对产品导向又方便产品运输,下滚轮高度与传输滚道高度(900mm)一致。
3.3 定位夹紧机构
3.3.1 边框定位顶紧机构
车厢产品型面简单,但轮廓尺寸较大,焊接变形大,关键要选择最科学、最合理的定位夹紧方式,最大限度地减小焊接变形,以保证焊后整体精度。此夹具以一侧边框做为定位基准,另一侧边框用气缸顶紧。边框定位顶紧机构共选择了7 处(见图3)。
3.3.2 页板定位机构
图6 为页板定位机构,页板采用端面及定位销定位,气动夹紧,正因为页板的侧向销孔定位,焊后必须有退料机构将制件退出定位销,然后制件举升。
3.4 退料机构
由于页板上侧向定位销的限制,焊完后,制件无法上下取出,此外焊接后会产生不同程度的变形,因此必须采用退料机构,用气缸将制件推出定位销,然后再由举升机构将制件顶起输送到下一工位。(见图7)。

图7 退料机构 图8 限位锁紧机构
3.5 设计高精度移动滑台,保证系列车型的尺寸变化
为实现多种车型的混流生产,最简单可靠的方式是采用移动滑台带动各机构适应系列车型尺寸变化。为了保证滑台的运动精度,我们在移动滑台上使用了一般只在数控机床采用的高精度线性滚珠导轨。该导轨由长导轨和带有滚珠的滑块组成,导轨两侧和滑块内侧都平行延伸着四条弧形滚道,使钢珠在运动中有良好的线性接触。因此导轨运行平稳,精度高,机械能耗小,运动速度快。
此外,导轨中钢珠的过盈配置能实现不同的预负荷,完全可以承受滑动部分的重量。充分保证了滑台平稳、自如地运行。
3.6 限位锁紧机构
为准确控制滑台的移动行程 ,我们设计了定位销进行限位(见图8)。滑台到位后,安装在滑台上的定位销插入到固定台上的限位孔里,保证定位准确,使用方便,完全满足产品设计精度和工艺要求,保证整车质量。
4 合理利用有限空间,使系列车型柔性化生产焊接夹具更紧凑、更科学
由于多种车型混流生产,最短的总长2593mm,焊立柱4 根,最长的4690mm,焊立柱7 根。为适于多种车型的变化,每根立柱要采用一组滑台,由于长度差异太大,每组滑台的移动会出现相互干涉,各机构布局紧张等现象。因此设计中我们必须严格遵循四点设计原则:
(1) 设计部件及移动滑台不能影响制件的装焊及焊接操作;
(2) 各种车型的功能部件不能相互干涉,既要布局合理,又要结构紧凑;
(3) 设计部件结构要灵活可靠,操作简单,便于更换车型,维修方便;
(4) 夹具要有明显标识,便于生产工人频繁更换车型生产需要。
设计中将每一组边框定位顶紧机构、页板定位机构、举升机构等安装在一组滑台上,编上号,再根据每种车型两立柱间距离尺寸的变化移动滑台。如:以1 号滑台为基准,11 种车型的立柱间距分别为735、683.5、651、723、684、783、695、551、931、645、651,那么2 号滑台就要设置11 个移动位置,相对需有十一个限位孔(见M 放大图)因孔位较多,必须作出标识便于更换车型。如:2(03 08 011)表示2号滑台03 号车型、08 号车型、011 号车型限位销的位置。为减少大底架的孔位加工,在底架上安装若干过渡板,在过渡板上加工限位孔。不仅降低大底架的加工难度,而且过渡板可更换。当生产新车型时,只需更换过渡板,此过渡板的限位孔可根据新车型的需要重新排列加工。从而降低工装的再投入成本。
此夹具共设计9 组移动滑台及128 组限位孔,7 组边框定位顶紧机构、7 组页板定位机构、4 组举升机构、1 组退料机构、2 组栓钩定位机构,4 组侧滚轮导向机构,2 条贯通式高精度导轨,总计170 余种机构安装在夹具底板上。
5 采用通用化、模块化设计使设计、制造、安装调试周期最短创历史记录
我们本着柔性化的设计原则,采用模块化的设计方法,对车厢产品功能和焊夹结构进行分析,将经常的、重复使用的、具有共性的零部件进行简化和系列化,经过优化设计后成为具有独立功能的通用件,如:上面介绍的双导柱举升机构、侧滚轮导向机构、定位夹紧机构、退料机构、限位锁紧机构等。利用计算机辅助设计和数据库管理技术,将其结构实形完整绘制后作成图块,形成一个专用于焊装生产线的标准数据库,同时建立通用件、外购件等多个参数库,在设计时直接以模块方式调用插入到设计图纸中。使设计在一个较高的起点上进行,提高设计效率75%。同时大量的通用件降低了制造成本,促进了制造效率的提高,为解决日益缩短的工期给设计造成的压力,找出一条科学的设计方法。
6 多品种混流生产柔性焊接夹具的CAD 设计技巧
该项目混流产品多,夹具繁杂,各功能部件多,夹具布置易出现干涉、操作不便等现象。以往手工画图将十余种产品及各部件同时罗列体现在一张总图中,图面复杂,差错率大。如今我们充分利用计算机的优势,采用AutoCAD 中“层”的设计技巧,将多个产品分别做到不同的层中,一个产品一个层,通过对层设定不同的颜色来区分各个产品在总图中的位置,再利用层的“开与关、锁与解锁、冻与解冻”等功能,按照单一产品组装各功能部件,每一个层就是一个产品的单一夹具。设计者可以利用层的功能移动各个滑台,一个产品一个产品地来模拟夹具的安装与操作,确保多品种混流夹具设计的正确性。
该项目的设计成功将为我厂及国内各大汽车生产厂家少投入、快产出、抢市场、创效益提供了宝贵经验。
(转载)



