整个控制系统由高炉上料及炉顶装料炉顶压力系统、高炉热风炉系统、高炉本体控制系统、高炉水冲渣系统、高炉矿槽控制系统、出铁场及除尘系统、喷煤分配器系统、高炉煤气清洗系统、制粉系统、煤粉喷吹系统、高炉水处理系统组成。
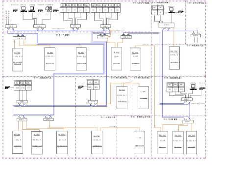
整个高炉控制系统一共部署了14台Siemens公司的冗余的S7-400 PLC,21台基于Windows 2000操作系统的Citect工作站,一套Citect公司提供的中间件产品Plant2Business2.0和一套大型关系型数据库Oracle。网络系统采用15台Siemens公司的OSM交换机构成一个环形的冗余网络。
天津钢铁有限公司高炉控制系统的网络结构图如下所示:
系统构成信息:
操作系统:Windows 2000 Server中文版 + Windows 2000 Professional中文版
Citect版本:CitectSCADA5.42
Citect I/O服务器数量:6台
Citect工作站数量:21台 S
iemens S7-400 PLC控制站:14套
OSM光纤网络交换机:15台
网络速度:10/100M
操作人员在Citect工作站发出设备运转指令,PLC控制系统接收到运转指令后,实现PLC联动运转。
(转载)



