1 探伤原理与工艺参数的确定
1.1探伤原理
先由两个半桥壳对接形成后桥壳,然后再由后桥壳与半轴套管用环焊缝焊接成桥壳体,环焊缝与对接纵缝成丁字交叉。汽车后桥由冲压成形的半桥壳、后盖、法兰盘、半轴套管等几部分焊接而成。
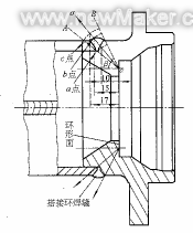
后桥材料为20号钢,所有焊缝均采用CO2自动焊接,环焊缝为搭接形式(见图 1),可能出现的缺陷大多为根部未焊透和保护不当引起的气孔,其中根部未焊透对疲劳寿命影响最大。由于环焊缝与对接纵缝形成丁字形接头,按照常规探伤方法,由于纵缝的阻碍引起几何形状突变,不利于探头与工件表面的贴合,在焊缝表面实施自动探伤比较困难。若采用水浸法,则不利于在线连续生产。由图1可知,在后桥轴头套管内有一环形平面,环的宽度为9 mm,将探头贴在此环上,从后桥内壁向上发射超声波来探测焊缝,若发射的超声波包住整个焊接接头断面,旋转后桥且探头不动,则可实现自动超声波探伤,其原理如图 1 所示,图中a,b 和 c点为假设缺陷处,数字为超声波声轴线投影法确定的缺陷深度(单位为 mm)。

图 1探伤原理及缺陷回波定位法示意图
1.2探头参数的选择
1.2.1K值
由于后桥环缝位置的几何形状和尺寸的限制,满足自动探伤要求的位置狭小,为了保证探伤的可靠性,采用多探头多方位扫查方式。探头设计成组合探头形式,后桥头每边采用4只探头,两边共8只探头同时检测,每个组合探头中的探头以圆心为对称点,相隔90°均布。探头扫查方向如图 2 所示,1号探头向斜下方扫查焊缝,另外3只探头从斜上方扫查环焊缝。两端的组合探头呈对称布置。斜探头入射角β由后桥环缝位置的几何尺寸确定,其原则是超声波束要包络整个焊缝断面,如图1所示。计算可得[1]K1,3=1。28,K2,4=2。03。

图 2探头布置及扫查方向示意图
1.2.2探头频率f
根据超声波检测理论,要减小超声波通过介质时的衰减和避免林状回波干扰,应采用波长较长的波型和较低频率的超声波为宜,要检测出尺寸很小的缺陷,则希望超声波波长要短,综合考虑各方面的因素并经实验确定f=5 MHz的晶片,以保证较高的探伤灵敏度。
1.3探伤介质确定
由于后桥材料为碳钢,且经探伤后要进行机械加工,因此选用20号机油作为探伤耦合介质,自动探伤时,由油泵均匀连续地供给机油介质,在组合探头上设有出油孔,靠近各个分探头,保证在探头和被测表面之间形成均匀油膜。
1.4组合探头设计
专用微型组合探头是接收和发射超声波的换能器,其设计是根据工件的特定尺寸、位置以及保证桥壳探伤可靠的要求综合构思的。组合探头采用铜质基体(耐蚀性好),探头内设计有耦合剂通道,与探伤工件表面接触处镶有0。3 mm厚的硬质合金片,保证组合探头不被磨损。组合探头由液压缸驱动,由位移传感器控制行程,组合探头与工件的接触由弹性元件施力,模拟人工探伤时,给予探头的接合力约为8 N,这样既保证探头与工件的紧密结合,又使探头具有柔性可以与探伤表面随动,从而提高可靠性。
2探伤系统
2.1系统组成
车桥环焊缝自动超声波探伤系统主要由HKD-8型8通道数字化超声波探伤仪,专用微型组合探头,桥壳定位旋转机床,液压系统,电液控制箱,打标机,586计算机,激光打印机及报警装置组成,探伤节拍为每件探伤时间小于3。5 min,能进行桥壳环缝超标缺陷的判定,定位打标记,档案记录,伤波形记录和实时声光报警。
2.2系统功能设计
2.2.1HKD-8数字探伤仪
HKD-8数字探伤仪具有8通道,能独立发射和接收超声波,各通道都能独立完成探伤功能,又能任意组合,轮替进行探伤扫查,具有如下功能:a。 系统参数和探伤工艺的设定以及伤波等三类数据的存储和恢复;b。 声速设置,零点校准,K值校准及缺陷深度定位;c。 探伤灵敏度及报警闸门的调节;d。 对闸门内回波进行读数监视及声光分级报警;e。 超标缺陷的自动打标记及探伤结果的自动存储;f。 整条环缝探伤波形的360°全景显示及存储;g。 探伤报告的建立、记录和打印;h。 实时显示回波波高、位置以及回波峰值包络选择。
探伤仪采用人机对话方式操作,各参数可通过鼠标选择调整。
2.2.2桥壳夹持旋转机床
机床完成桥壳的定位及旋转动作,同时支撑和送给探伤探头,机床以桥壳两端轴套管的外表面为定位和夹持基准。工件的旋转采用交流伺服电机变频控制来调节桥壳的旋转速度。由液压站供给动力,驱动探头的进退,同时供给探伤耦合剂。探头的探伤位置由位置传感器和压力传感器给定,工件的上下由人工完成,也可增加机械手实现自动上下工件。机床上设计有缺陷定位打标装置,采用电磁铁驱动,使用长效油性记录笔,根据计算机指令标记出缺陷相应位置。
2.3仪器控制系统
仪器控制系统可实现全自动探伤和手动探伤程序,手动探伤主要用于系统的调整和人工探伤,设置有“急停”和“复位”按钮,同时,通过变频调速器可设定和调整探伤工件的旋转速度。全自动探伤由计算机控制,在计算机程序中设置有虚拟控制盘和各功能按钮,可单独控制探伤工序中的每一动作,还可选择探伤仪通道,全屏幕观察该通道号探伤波形,实时监测探伤过程,提高探伤的准确性。全自动探伤程序用于连续探伤生产。
2.4多通道数字探伤仪
探伤仪由计算机处理系统同步控制,并采用键盘按照人机对话的形式进行操作。由计算机系统发出同步脉冲信号触发发射电路,产生高压负脉冲加在超声探头上,探头收到的脉冲超声波转换成微弱信号,由接收放大器放大,经A/D转换器将信号转换成数字信号,进入计算机运算处理,最后经显示卡至显示器上,实时或冻结显示器波脉冲[2],多通道探伤仪主要技术指标如下:频率范围 为0。5~10 MHz;最高重复频率为 5 kHz;衰减量为 119 dB,0。5 dB步进(小档)和5 dB步进(大档);动态范围为 26 dB;垂直线性不大于4 %(2。5 MHz);水平线性不大于4 %;脉冲延迟 0~302。0 mm;测量范围为 38。01~304。1 mm;采样频率为 40 MHz;分辨率不小于28 dB;对200 mm深度-2平底孔2。5p20Z灵敏度不小于46 dB;5p14Z灵敏度不小于36 dB;每通道都有伤波闸门,其范围可从0 %~100 %,以红色亮线显示,水平方向表示时间,垂直方向表示范围,同时具有声、光报警方式,并在工件上实时标记缺陷位置。
3测试及使用结果
目前,汽车后桥的超声波探伤系统还没有明确的检验标准,借用YB1082-92标准对探伤系统进行了评价,其综合性能指标达到了YB4082-92规定的合格值。同时对实际车桥模拟缺陷进行了检测,缺陷检出率为100 %,图 3 为某车桥检测整条焊缝的波形记录和缺陷位置、长度及波高的档案记录,缺陷为未焊透 (图中CH1~CH4 为探头号,α为车桥的旋转角度)。

图 3车桥探伤记录格式
本系统采用了车桥桥头内孔探伤的新方法实现了汽车后桥环焊缝的全自动探伤。"采用一体化设计的微型组合探头,采用机油耦合,弹性施力,使得声耦合条件稳定。检测过程中声束入射条件稳定,保证了探伤的稳定和高灵敏度。同时,该系统采用了计算机控制,实现了缺陷的评判、定位以及记录的自动化,也实现了探伤报告的实时编写,该系统已投入使用。
(转载)



