我国汽车工业的发展战略目前正从载重卡车向轻型汽车和轿车转移M&N。铸件在汽车工业中占有重要地位,铸件重量约占汽车自重的20~30%。当前,随着全球性的能源紧张和生态环境的日益恶化,对汽车的重量轻、油耗省和尾气排放低的呼声越来越高。因此,汽车工业的发展趋势是用轻合金取代传统的黑色金属材料,如钢和铸铁,以实现汽车的轻量化和节能化的要求。为此,发达国家汽车工业对铝合金和镁合金等轻金属的需求量越来越大M’N。轿车工业中铝合金铸件在2001年占整个铸件总量的50%左右,甚至出现全铝发动机和全铝车身。
现在我国已正式把汽车工业的发展列入国民经济支柱产业,相信在不久的将来,我国的汽车用铝合金铸件的需求量将大大增加,而我国现在使用的铝合金铸件占的份额还不及发达国家的四分之一。我国四大引进轿车车型( 桑塔纳、捷达、富康、夏利)的汽缸盖、制动泵和变速箱箱体等铸件是国产化的关键零件。国内生产铝铸件大多采用设备及工艺均复杂的低压铸造工艺,废品率高达25%,生产率低。对于铝合金铸件在铸型中的凝固特性及其铸造工艺的研究也较薄弱。因此,西方工业发达国家在20世纪80年代特别是进入90年代以来,纷纷采用已商业化生产的半固态金属成形工艺技术进行高性能( 高致密度)的铝铸件的生产。这种工艺相对简单、稳定,是成品率极高的金属成形技术,被称为跨世纪重大技术。
半固态金属加工技术是在20世纪70年代才发展起来的一种金属成形新工艺,它将搅拌法制造的非枝晶半固态金属坯料,经再次加热到半固态进行挤压或压铸成形。由于半固态金属在成形前已是固液两相共存,易于均质变形,且高粘度的半固态浆料可以在填充时不发生紊流而平稳充型,同时半固态金属坯料的初生相为球状而使变形抗力显著下降,使铸件的加工性能和内在质量都优于常规铸件;该工艺还可以制造近终形制品。因此半固态触变成形工艺在国内外得到了广泛的应用。
预计半固态金属成形技术在汽车、航空和航天等领域将有广阔的应用前景,已引起各国研究者们的极大兴趣,并取得了较大的进展,美国和法国等发达国家在工业应用上已经领先一步。1996, 年,美国半固态铸造产品的销售额高达10亿美元。
相比之下,我国对半固态金属成形技术的研究和开发工作还刚刚开始,与国外先进水平有较大的差别,工业应用方面的研究几乎还是空白。因此,开展半固态金属成形技术的研究,既是加速我国汽车工业发展的迫切需要,同时也是在这个领域跟踪国外高科技的必要保证,具有重要的科学技术意义。
本文主要介绍半固态铝合金触变成形实验装置,包括加热炉、温度控制仪以及半固态铝合金触变成形模具的设计和制造。该装置不仅可以研究半固态铝合金的触变成形规律,而且还可以作为半固态镁合金的触变成形试验装置。
1 半固态铝合金触变成形的实验系统
半固态铝合金触变成形实验系统框图如图1所示。该系统由材料试验机、开体式加热炉、XMT-1温控仪( 测量模具温度用)、二次加热装置( 管式加热炉和可控硅温度仪)及挤压模具等5部分组成。考虑到材料试验机的工作空间,我们将加热炉设计为开体式,热电偶材料为镍铬镍硅的。下面分别对加热炉、温控仪和挤压模具的设计进行论述。

1.1 加热炉的设计
根据我们设计的挤压模具的形状和尺寸,以及60KN万能材料实验机的具体要求,加热炉选用侧开圆筒式,不通保护气体。
根据挤压模具的形状、尺寸、技术要求、装卸料方式和操作方法,同时考虑到造成炉膛良好的热交换条件,保护炉内温度均匀性,减少热损失和便于电热元件、炉内构件更换以及炉子维修等,设计实际炉体结构和尺寸如图2所示。

为避免挤压模具与炉内壁或电热元件相碰撞,应使挤压模具与炉膛内壁有一定的空间,故确定工作室有效尺寸为:炉胆高度H=170mm;炉胆直径D=180mm。
选取轻质黏土(QN-1.0)和硅酸铝耐火纤维毡为炉衬材料。
根据参考文献6,将加热炉的功率设计为3KW。由于半固态铝合金触变成形的最高使用温度为615度,选用线状OCr26Al5合金作电热元件,接线方式采用串联。
1.2 温控仪的设计
控制模具加热温度的温控仪电路图如图4 所示。该温控仪的测温范围是1-1300度,测温精度为1度,并具有过电压、过电流断电保护功能。接触器的最大电流为20A,线圈电压为220V,与动力电连接。显示屏采用LED数码显示。温度传感器为自制的镍铬镍硅热电偶。加热温度可以自由设定。

1.3 挤压模具的设计
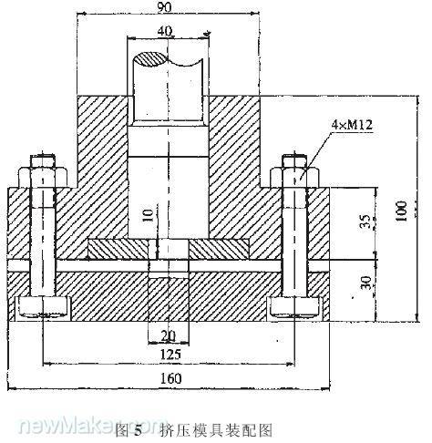
考虑到半固态铝合金触变充型中的流变特征,我们将挤压模具设计成指形模。指形模选择为六指形,六指在同一平面,为辐射形分布。六指孔尺寸分别为6X3mm,6X4mm,6X5mm,6X6mm,6X7mm,6X8mm,研究半固态材料流动规律和填充性能,探索不同工艺参数与成形流动性的关系。考虑到金属的偏流现象,将孔型的体积分布尽可能对称。实际挤压模具的六指孔尺寸分布如图4所示。图5为挤压模具装配图。图6为触变成形实验装置示意图。



图6 触变成形实验装置示意图
2 实验结果与模拟验证
用上述自制的实验装置,对半固态AlMi7Mg合金进行了触变成形实验研究。试样尺寸为直径38mmX45mm,模具预热温度为300度,试样的二次加热温度为588度,保温12min。图7为试样经过触变成形后的照片。
图8为在相同的实验条件下用DEFROM商用软件进行的模拟计算结果。从图7和图8中可以看出,充型过程中的半固态金属自由表面为较平滑的变形的抛物面,而模拟计算结果为标准抛物面。充型过程中指形模的的流动长度与模拟结果很相似,这说明二者的拟合度很好。同时也证明了我们设计的实验装置的实用性和模拟计算结果的正确性。


有关半固态AlMi7Mg触变成形的实验研究、本构模型及其模拟计算的详细探讨,我们将在相关杂志上陆续发表。
3 结论
设计并制造了一套半固态铝合金触变成形的实验装置。
半固态金属充型过程近似看成是单相等温层流流动。
从实验结果来看,充型过程中的半固态金属自由表面为较平滑的变形的抛物面,而模拟计算结果为标准抛物面。充型过程中指形模的的流动长度与模拟结果很相似。
在实验过程中,我们发现二次加热的温度和保温时间以及充型时间是保证试件质量最为关键的工艺参数。
(转载)



