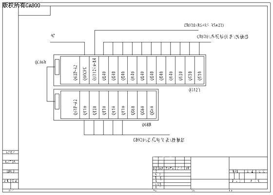
| 1.公司介绍: 成都新筑路桥机械股份有限公司地处中国西南政治经济文化中心-成都市,是从事路面机械、桥梁构件及混凝士搅拌设备设计、制造的专业企业;历史悠久。 公司占地面积五百多亩,下属有目前国内规模最大的摊铺机生产制造厂,桥梁构件伸缩缝生产制造厂,以及橡胶支座生产厂等。固定资产规模一亿九千万元。本公司生产的产品多次通过国家权威机构的检测并获得多项专利证书。其研制生产的摊铺机属国家级重点新产品开发项目,受到众多专家学者的好评。 公司具有众多的工程技术人员,有较强的科研及开发能力;并与国内西南交大、西安公路学院等大专院校和科研设计机构有着广泛的合作关系,实现了产学研一体化。产品的科研-设计-制造水平已达到相当的高度,具备了生产一代、储备一代、研发一代的能力。本公司所生产的各种产品分布在全国各地,并已广泛应用于公路、铁路、机场、水利及市政各项工程中,受到各界的好评。曾被中国质量管理协会、全国用户委员会、四川省质量管理协会等授予"全国用户满意产品"和"质量管理先进单位"称号;获四川省名牌产品称号。 2.设备说明: HZS间隙式混泥土搅拌设备自动控制系统是HZS型间隙式混泥土搅拌设备的核心控制部件,系统是由上位控制计算机单元,可编程控制器三菱Q00CPU,以及配料,称料控制仪表CB920X组成的分布计算机控制系统。系统能够完成各个工作环节的工作状态控制;系统的启动/停止,及故障的连锁控制;物料配方的管理,上传和下载;异常工作情况下的监控,故障解除和对电动装置的保护控制。 该配料计量系统通过固定落差、动态逐次逼近、脉冲精称等控制方法来提高物料的精度。计算机控制系统可以在管理计算机操作界面上设配料生产过程中所需的各项参数,完成对各单元的初始化设置,系统启动后,测量并显示工作过程中的各项参数,对异常情况给以警告。同时配合控制柜面板上的元器件及监控仪表,可及时切换手/自动状态,修改各项工作参数,达到最优化的工作环境。还可以完成工作过程数据的存储,以及生产报表的打印功能。HZS60型混泥土搅拌设备在自动控制系统的支持下可以实现灵活的操作和更加直观全面的自动化生产。 3.系统配置图: HZS60自动控制系统是由上位控制计算机,面板功能接口,信号适调接口,信号转换接口,功率转换接口以及可编程控制器PLC组成。单元之间利用标准RS232串行口进行通讯,使之成为一套完整的系统。控制系统采用集中方式对拌和设备的主要工作单元进行直接控制,各模拟信号通过CB920X输入中央控制单元,开关量信号和控制输出信均通过可编程控制器PLC与上位控制计算单元相连接。上位控制计算机还提供生产管理功能和一套屏幕操作界面。 系统组成及功能如下:(可参照系统配置图) ![]() 可编程控制器:选用三菱Q系列PLC,此类型PLC比同类型产品具有高水平的应用性和灵活的扩展性能,并且支持目前流行的开放式网络CC-LINK、PROFIBUS-DP和DEVICENET,为以后的性能提升留下广阔的空间。 物料计量控制单元:选用CB920X-10称重仪表,支持通用的电阻应变片式传感器,内部集成算法,能达到准确的物料计量。同时支持四种物料的配比,通过累计方式自动分批称量,允许手动强制补料。CB920通过RS485/RS232与PLC通讯,进行配方的对写和存储,并且与PLC配合实现最佳的配料方案。 上位计算机管理单元:它通过中央控制单元来管理各单元的工作,为用户提供可操作的人机界面,存储配料清单,与PLC用RS232串行通讯口进行数据监控,接收各单元传送的异常信号,向用户发出报警信号和处理措施,按年、月、日、时统计班次生产资料,以表格形式打印并将数据存盘。 辅助设备控制单元:采用可编程控制器PLC的DC电压输入电压作为开关量信号适调和光电隔离环节,采用继电器输出单元作为开关量输出的功率放大和隔离环节,中央控制单元通过通讯口来控制其工作方式。 动力配电控制单元:选用优质的施耐德电器元件:空气断路器,接触器,继电器,以及电机软启动软停止单元,确保精密控制仪表和电动执行装置的安全,对各负载之路出现的过流,短路和欠压等情况进行监控,同时各支路设置跳闸反馈保护。 4.控制模式: 该套控制系统分为控制台手动、控制台自动(REMOTE),及上位机自动(LOCAL)三种操作模式。第一种操作模式主要用在可编程控制器和上位机均不能正常工作的状态下,而后两种操作则依赖于配料控制器、PLC和上位计算机之间的协调工作和正常运行。 5.调试体会: 该套控制系统在调试期间因为是单机系统,基本没有遇见较大的问题。设备的运行情况良好,与其他设备之间的通讯稳定,完全能满足现场的生产稳定性要求。 6. 用户反馈: 经过近两年的运行,在诸多恶劣的工作环境中运行,此系统未出现任何故障,充分体现场了三菱产品的高度可靠性,得到了用户的高度好评。 |
(转载)




