一、前言
电气控制系统是先进、复杂的机械设备的大脑和中枢神经系统,它关联了机器各部分的通讯,提供了机器的动力、各部件的测量及控制,包含了大量的元器件、电源线、信号线、控制电缆等,其设计的好坏与机器性能和质量息息相关。在电气控制系统设计过程中,设计人员需要综合分析、处理与系统相关的各类电气信息、机械信息、物料信息、标准化信息和管理信息。传统的烟草设备电控系统的设计需完成如下任务:
1、根据设备的工艺特性作出整体控制方案,绘出控制流程简图。
2、根据控制流程,依据相关设计标准及设计原则对关键元器件(如PLC、IPC、HMI、驱动器件、传感器及主要执行器件)选型。对没有编码的新增元器件写出采购资料并提出物料代码的申请。
3、根据控制流程及主控器件的选型绘出相应的控制草图,对输入/输出点进行统计并作出I/O分配表。
4、编写应用程序。
5、根据图样设计标准,完善原理图设计及器件选型,并对没有编码的新增元器件写出采购资料并提出物料代码的申请。
6、手工统计所用器件,完成设备元件表。
7、根据机械部件的设计,画出位置图、布置图及电气工艺设计资料(如接线图或接线表)。
8、根据设备元件表及其它技术资料完成电气BOM表的编写,并导入企业的PDM系统。
9、手工统计电气图样,完成电气图样文件目录的编写。
随着自动化、信息化技术的发展,国内各烟机制造企业均配置了各自的CAD/CAE/CAM/PDM/OA平台,提高了企业的核心竞争力。一般情况下,企业配置的CAD软件为AUTOCAD、PRO/E、SOLIDWORKS等机械设计平台,这些软件对于机械设计提高了设计速度,减少重复劳动,缩短了设计开发周期。但由于电气设计和工艺与机械不同,这些软件并不能减少电气设计工程师的劳动强度和提高设计效率,因而电气设计工程师一直为设计资料过于烦琐、重复工作太多、设计效率低下、错误难以避免而困扰。
德国EPLAN公司开发的E-CAE软件EPLAN21解决了困扰电气工程师的难题,它为每一个电气工程项目提供了完善的解决方案。通过一个开放的、模块化的系统和广泛的特征选择给予它们高度的灵活性,EPLAN21不仅提升了电气控制系统设计的工作效率,同时在项目设计的每一个阶段提供最适宜的支持。
二、EPLAN21的技术特点
根据我们的使用经验,将EPLAN21的技术特点归纳如下:
1、强大的专案图面管理功能
传统的AUTCAD软件必须一张图一个命名,设计者无法了解命名与绘图的关联性。若需修改或增加图面,必须花更长的时间修改前后图号或重新编排。EPLAN 21使用专案名(WORKING SET)来管理图面(图1),每一专案可容纳32000张图,对每一张图可轻易调整图号及修改图框内的任何内容,无须象AUTOCAD软件那样反复修改图面内容。资料打印时,无须进行烦琐的设置便可选择部分或全部页面进行打印。

图1
2、标准的电气符号库
电气图面的绘制是最难标准化的,大多数公司的绘图软件的电气图面的绘制细节均无标准可循,电气符号也都是由设计者根据自己的经验或公司以前的习惯拼凑而成。例如AUTOCAD提供的只是一个绘图环境,太开放式的构架,无法控制每一位设计者的准则,不同的设计者绘制的图形大小、位置、编号均无法统一。EPLAN 21提供标准的电器符号库及元件编号(图2),设计者可以轻易的建立标准,统一所有的电气绘图,也可在许多绘图及资料编制细节上自行建立资料库,从而形成公司自己的标准。

图2
3、准确、灵活的器件库
通过ODBC(图3)将EPLAN 21的器件库与公司的数据库链接,使得器件设计选型的依据与公司的生产数据管理系统(PDM)的数据来自同样的数据库,这样减少了中间环节,提高了工作效率,同时也提高了设计的准确率。

图3
4、强大的电气资料及图表自动生成功能
AUTOCAD提供给电气设计者的是100%的绘图环境,任何电气图面、资料及图表都由设计者自行绘制。使用EPLAN 21,设计者自行绘制的电路图只占30%,剩下的70%的资料、图表由EPLAN 21自动生成,如电气图样清单、设备元件表、接线图、接线表、连接器局部图、接线端子局部图、材料清单(BOM)等等。产生的材料清单(BOM)的数据又可通过ODBC直接与公司的数据库链接,使其成为生产制造的数据源(图4)。


图4
5、方便、快捷的PLC I/O设计功能
当今可编程控制器(PLC)在控制回路的应用是相当普遍的,EPLAN 21提供了许多世界知名厂商(如SIEMENS、AB、GE、HITACHI等等)的PLC画面(图5),设计者只需提供必要的文字信息,便可在最短的时间完成PLC I/O设计。同时设计者也可将公司常用的其它厂商的PLC画面补充进去,形成公司自己的PLC资料库。

图5
6、丰富的图面输入、输出接口
EPLAN 21图面(图6)可以以DXF、DWG、PDF等多种文件格式输出,并且可以读取DXF、DWG等格式的图面进行修改。

图6
7、自动翻译功能
EPLAN 21支持16种主要语言,通过设计者定制,所设计的图面、资料及图表的文字信息可以在多种语言间自动切换(图7)。对于有国际市场的公司,应用该功能是十分有利的。

图7
三、基于E-CAE软件EPLAN21的烟机电控系统设计实例
下面笔者以YF14卷烟储存输送系统的电控系统的设计实例,介绍使用EPLAN21进行设计的过程和方法。
1、建立一个新专案(working set),命名为YF14。
2、建立一个新项目(project)YF14。
在该步骤首先要选用一个模板(template),该模板可以是各种标准模板(IEC、DIN以及JIC等等),也可以是本企业自定义的模板。笔者根据实际要求,定义了一个模板ctmtc(中烟机械技术中心的缩写)。在模板中主要对所采用的图形符号库(symbol file)、图框(plot frame)以及自动生成的各种文件或图样的格式(form)进行定义。对应于上述的symbol file、plot frame以及form,在EPLAN 21中均有各种标准的格式供用户选择,一般情况下企业都根据自己的要求形成自己的symbol file、plot frame以及form,从而形成满足企业要求的模板。
3、对项目(project)的属性进行定义,以符合项目的实际情况(图8)。

图8
4、将已选型的器件从企业的物料库中以EXCEL文件格式导出,通过ODBC与EPLAN 21软件的器件库相关联(图9)。

图9
5、将PLC的I/O分配表按EXCEL的.csv格式编制,存入PLC资料库。
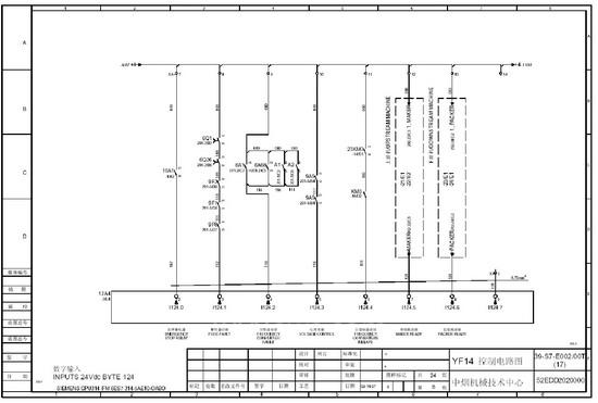
6、绘制电气原理图(图10)。

图10
电气原理图应反映所有器件的电气信息、几何信息、物料信息、标准化信息。由于在EPLAN 21软件中的几何信息和标准化信息均已定制或自动生成,在电气信息中,其连接特性也可自动形成,因而只需要对部分电气信息进行说明和对物料信息进行选择即可。
在EPLAN 21软件中,每个器件(包括连线)都有其自身的属性表,由以下5部分组成:
⑴ DEVICE TAG:主要反映器件的文字符号信息,一般在模板里就已定制,可根据需要进行修改。
⑵ PROPERTIES:器件的位置信息、连接特性、说明及电气信息。
⑶ INSTANCE:显示信息,规定需显示的PROPERTIES以及显示位置及格式。
⑷ SYMBOL DATA:器件的图形符号信息。
⑸ PART:器件的物料信息,在前面已关联好的物料库中选取。
7、根据机械安装位置,绘制电气位置图和布置图(图11)。

图11
8、选用适当的FORM,自动生成电气工艺图样及文件(包括接线图或接线表、连接器和端子排清单等等,见图12)。

图12
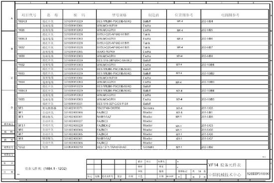
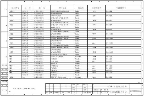
9、选用适当的FORM,自动生成电气设备元件表(图13)。

图13
10、自动生成图样文件目录(图14)。

图14
11、自动生成EXCEL文件格式的BOM表,再与其它机械信息整合,形成完整的电气控制系统BOM表后,导入企业的PDM系统。
四、结论
EPLAN 21软件是基于WINDOWS操作系统开发的专业的E-CAE设计平台,强调了电气控制系统设计的一个整体构架,将系统的电气信息、几何信息、物料信息、标准化信息和管理信息构造成一个个标准的构架,供用户灵活选择和定制。其设计界面友好,操作性强,电气工程师只需录入必要的真正的设计信息,而将大量的烦琐的统计和机械式重复的工作交由计算机完成,大大地提高了设计效率,在设计更改上尤为简单、方便。EPLAN 21软件的接口兼容性强,其图形接口可与GUI、AUTOCAD兼容,数据接口可通过ODBC可轻松地与企业的PDM系统整合,保证了设计数据的一致性。
处于信息时代的中国烟机制造企业,采用E-CAE电气专业设计软件EPLAN 21,有利于提高电气设计的标准性、准确性,有利于提高企业的开发速度、开发质量,有利于提升企业的竞争力,有利于与国际接轨。
(转载)



