摘要
本文对比介绍两种CAD绘图设计软件AutoCAD 2000和CAXA电子图板2005r4在阀门设计中的应用情况,重点讲解了CAXA电子图板是一套高效、方便、智能化的二维设计和绘图软件。充分运用先进的CAD软件,进行相关产品设计,可有效地提高阀门设计效率、缩短产品的研发周期,降低生产成本从而提升产品的市场竞争力。
引言
AutoDesk公司是全球著名的CAD软件研发公司,多年从事CAD软件的开发,特别是二维设计绘图方面,AutoCAD几乎是PC机上唯一的CAD软件。武锅阀门公司原来使用中文版AutoCAD 2000绘图操作系统并加载合肥通用机械研究所开发的基于AUTOLISP编程的二次开发软件VALVE来进行阀门设计。前后使用有4年多时间,基本可以满足使用要求,但是效率不高。
AutoCAD软件应用现状
笔者站在设计的观念上看,的确AutoCAD软件起步早,绘图功能也十分强大,在计算机绘图领域里具有不可低估的影响力。但AutoCAD是一个绘图的平台软件,它为了占领国际市场,其功能涵盖了几乎所有需要绘图的领域,它并没有制定专门针对某个特定行业(如机械设计、电路设计、建筑设计等)所需的行业功能,直接用它来搞机械设计,特别是阀门设计是有一定困难和低效的,虽说阀门公司购买了二次开发软件VALVE,但是它的操作功能有限、图库资源不大,只包括了常见的连接件和紧固件的图符选型,更多的是靠设计者在AutoCAD中一笔一划把它绘制出来,这样一来设计效率非常低。另外,绘图时图框、标题栏、图层、线形等参数需自己设置定义,难度大,而且容易出错;而且还需长年累月一点点的自建图库,这样操作起来即繁琐又十分不便,给设计图纸带来障碍。另一个原因就是阀门同行之间的技术交流比较频繁,经常探讨阀门图纸,由于AutoCAD版本众多,有AutoCAD2000版、AutoCAD2002版……直至现在最近的AutoCAD2007版,同样的文件在不同的版本AUTOCAD内容显示不一致,甚至混乱,给行业的技术交流带来严重障碍,违背了工程图纸“完整、正确、统一、清晰”的原则。而且AutoCAD内容庞大、界面混乱、掌握起来难度不小。
现在,使用了一段时间的绘图软件,感觉到在企业搞CAD是件非常严肃的事情,CAD软件不同于其它设计应用软件,一定不能贪图便宜而使用盗版,否则轻则影响产品设计,重则会给企业技术革新、行业交流带来障碍。根据我们现在的使用情况,从实用出发,AutoCAD性价比不高,售价昂贵,中文版2006配加密狗、一套一机,市场售价1.98万元。花了钱却不能给企业带来好的经济效益,就决定放弃AutoCAD,另找其它二维绘图设计软件。
目前,市面上二维机械绘图软件很多很杂,其中使用率较高的就数CAXA电子图板。就目前绘图而言,画一条直线、一个圆,无论是AutoCAD、电子图板、或是其它CAD软件都是大同小异的,选用任何一种软件都无所谓。但我们的工作重点毕竟不仅仅是画简单的几何图形,我们从事的是机械设计、阀门设计,它不但要求我们绘制机械零件,更要求我们所画的图纸符合行业的相关标准。不但如此,还要求快捷、方便、准确的画出图纸才是最终的目的。从这个方面来讲选择CAD软件是非常重要的。
CAXA电子图板是二维绘图软件,主要针对机械行业,兼顾建筑和电子行业,目前最新版本是CAXA电子图板2007r3版。该软件在国内有20多万套装机量。是现今国内使用最广泛的CAD软件之一。此外该公司还有三维设计软件CAXA实体设计和工艺软件CAPP,以及CAM领域内的“数控车”、“数控铣”、“制造工程师”等全套的CIMS(集成化制造系统)软件等。阀门公司向其它使用过CAXA电子图板的企业调研咨询,均反映使用绘图效率高,运行稳定、功能强大、售后服务优良等。另外我们自己也从阀门设计、工艺设计、自我需求等方面考虑之后,认为CAXA电子图板满足阀门设计要求,符合中国人的操作习惯,在绘图方面与AutoCAD极为相似,功能比较齐全,较之AutoCAD删繁就简,可以迅速掌握,突出机械设计的重点。其拥有的丰富参数化标准件库(机床夹具、法兰、管接头等)符合机械行业的相关标准,使用灵活、高效、准确。另外一方面它兼容/.dwg/.dxf/.exb文件,这样公司原有CAD文档能方便读写。种种因素,最终我们选择了CAXA公司的电子图板版。
CAXA电子图板的应用及特点
阀门公司经历了CAXA公司组织的软件培训,只用了半天时间,就能熟练的操作,软件转型无障碍,直到现在有半年多时间,认为CAXA电子图板是一套高效、方便、智慧化的软件。
1.自主版权易学易用
具有友好的全中文用户界面,灵活方便的操作方式。其设计功能和绘图步骤均是从实用角度出发,操作步骤简练,易于掌握,是用户充分发挥创造性思维的有力工具。
2.参数化的标准图库。
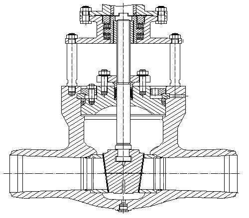
阀门中的连接件、结构件相当多,涉及到方方面面,如(图1)所示为电站闸阀装配示意图中,紧固件、密封件、润滑件、轴承等标准件特别多,且规格尺寸各异,原来使用的二次开发软件VALVE只有几种常见的螺栓、螺母选型,考虑的不多、不全,给设计带来诸多不便,没有办法只有翻手册、翻标准、查数据,最后还得设计者自己画出来,既繁琐又不符合国标。现在使用CAXA电子图板后,系统备有大量国家标准的参量化图库,它覆盖了机械设计、电气设计等所有类型。其中机械类图库有:螺栓和螺柱、螺母、螺钉、销、键、弹簧、液压气动、电气、轴承、电机、密封件、机床夹具等20多个大类,1000余种,近30000个规格的标准图符。每一个大类又分成10~20个小类,如螺栓和螺柱又分成(如GB27-1988六角头铰制孔用螺栓-A、GB/T18230.2-2000栓接结构用大六角头螺栓短螺纹长度C级8.8和10.9级)

图1
此外该系统还提供图库管理、尺寸驱动、定制图库手段等功能,可以对图库中复杂的零件图或装配图进行编辑修改,用户不编程,只需把图形绘制出来,标上尺寸,将尺寸定义后,可方便快捷的建立、扩充自己的参数化图库。图库设置为机械图的绘制提供了极大的方便。

(图2)
3.图幅设置
原来用AutoCAD绘图有标准的图框,但没有标题栏、明细表、零件序号等功能,需要技术人员手动绘制,十分复杂。而CAXA电子图板中的图幅设置包括了以上功能,系统支持最新国家标准,并通过国家机械CAD标准审查。软件提供符合国际的图框、标题栏、明细表,从而保证了设计过程的全面标准化。并且能根据自我需要自定义以上功能,给设计者很大的创作空间和自由度,非常便捷。它的零件序号功能更是让AutoCAD望尘莫及。在AutoCAD中只有一个个划出序号,再来划出明细栏,最后依次填写,不能有错,否则修改起来比较复杂。但在CAXA电子图板中那就完全不一样了,点击零件序号后进行编辑输入相关明细项目,就可生成明细栏(图2)等,所以在绘制装配图零件序号、明细表时,系统会自动实现零件序号与明细表联动。此外明细表还支持Access和FoxPro数据库接口。这些功能对绘制装配图十分有益,大大加快了设计速度和设计效率。
4.转图工具
在CAXA电子图板2007中,可通过【应用程序管理器】来加载二次开发程序【转图工具】,【转图工具】主要功能是将其它软件绘制的明细表和标题栏转换为符合CAXA专用的明细表和标题栏,为方便BOM表生成,明细表数据关联、输出,以及与ERP或者PDM等软件进行数据转换提供数据基础,扩展实用功能。因为公司以前是用autoCAD软件制图,图库中大量的图纸在目前使用时需要转换成CAXA格式,以满足公司标准模版的要求,所以CAXA的转图工具就显得很方便、高效了。
转图工具包括【幅面初始化】、【填写标题栏】、【定义明细表头】、【转换明细表】、【补充序号】五部分内容,各方面完善图纸转换工作。以前半小时甚至更长时间的工作量现在一分钟即可完成,转换后的图纸标题样和明细表信息内容准确、完整,大大提高了工作效率。
加载之后,在电子图板的界面上就会増加【转图工具】的选项,如图3所示。

(图3)
4.1【幅面初始化】
在【转换图纸】下拉菜单中,单击【幅面初始化】选项,则会弹出一个对话框,在此对话框中可以设置图纸的幅面、加长系数、图纸比例以及图纸的方向。
4.2【填写标题栏】
在【转换图纸】下拉菜单中选择【填写标题栏】选项,此时光标变为拾取状态,选择图纸中标题栏对角位置,如图4中红色矩形位置,完成后会弹出填写信息,如图5所示:

图4

图5
4.3【定义明细表头】
在【转换图纸】下拉菜单中选择【定义明细表头】选项,此时光标变为拾取状态,选择图纸中明细表表头对角位置,使用方法与【填写标题栏】方法相同。单击【确定】按钮后,明细表头定义完毕。
4.4【转换明细表】
在【转换图纸】下拉菜单中选择【转换明细表】选项,此时光标变为拾取状态,选择图纸中明细表对角位置,如下图红色矩形位置,完成后,会弹出【填写明细表】信息,如图所示

图6 拾取明细表
单击【确定】按钮完成转换。

图7 转换后明细表内容
【转换图纸】操作简单,易学易用,为企业存在的大量老图纸、其他格式图纸转换提供了一种全新的方法。
另外,如果您使用过CAXA绘图,那么您肯定会发现在CAXA软件中,如果将一张有图框、明细表、标题栏的图纸拷贝到新的界面中时,会认为图纸中没有明细表,无法使用明细表填写功能。采用转图工具转换的图纸一般是需要拷贝到新的界面中,这时也会发生同样的问题,要是明细表不被软件认可的话,我们的转图意义还有多大呢?要解决该问题,只需要将标题栏、明细表生成块,然后再拷贝到新的界面中,再将块打散,就可以使用明细表填写功能了。
4.工程标注
CAXA电子图板的尺寸标注比AutoCAD更加齐全,集成度更高。系统提供强大的智能化工程标注方式,包括尺寸标注、坐标标注、尺寸公差标注、形位公差标注、粗糙度标注、标注编辑等几大类,大类中又包括若干个子项目。单就一个尺寸标注就包括了基本标注、基准标注、半标注、大圆弧标注等多项内容。最明显的是基准标注,以前用AutoCAD标注尺寸的配合公差,需要查手册,然后再来回填数据,既繁琐又容易出差错。现在用CAXA电子图板就不同了,它自带公差配合查询功能,依设计查找相应公差相当快捷(图8)。标注的过程处处体现“所见既所得”的智能化思想,使用时只需要点击标注的方式,系统会自动捕捉用户的设计意图,具体标注的所有细节由系统自动完成。不仅如此,还有它的粗糙度标注、形位公差标注、焊接符号标注都没有AutoCAD那么繁琐、复杂,更加简洁、便于掌握。
系统支持在Truetype矢量字库和Shx形文件,可以利用中文平台的汉字输入方法输入汉字,方便地在图纸上输入各种字体的文字。

图8
5.编辑和绘图功能
系统提供强大的智能化图形绘制和编程功能,包括基本的点、直线、圆弧、矩形、多边形以及样条线、中心线、等距线、椭圆、孔/轴、波浪线、公式曲线等的绘制,提供裁剪、变换、拉伸、镜像、阵列、比例放大、局部放大、过渡、粘贴、文字和尺寸的修改等。其强大的智能化和图形绘制和编辑功能,可使技术人员绘制各种复杂的工程图纸。系统采用全面的动态拖放设计,支持动态导航,绘制图形时系统自动捕捉中点、端点、垂足点等特征点,成倍提高绘图时工作效率。
图库的应用实例
利用功能强大的图库,可以快速而准确的绘制各种复杂的图形。如绘制公称通径为100mm的法兰盘对接安装图的步骤为例来进行说明:

图9 电子图板启动界面
(1) 进入CAXA电子图板,如图9所示
(2) 由下拉菜单“绘图”中点击“库操作”至“提取图符”,弹出“提取图符”对话框,如图10所示

图10 “提取图符”对话框
(3) 在图符大类中选择法兰,在图符小类中选择整体法兰,在图符列表中选择GB/T9115.2-2000凹凸面对焊钢制管法兰(PN5.0MPa),右图所示为法兰图形显示。进入“下一步”在图符预处理中选取公称通径DN为100mm,按“确定”即可。并用同样方法选取相应尺寸规格的螺栓、螺母和垫圈等,如图11所示。
(4) 把螺栓、螺母和垫圈移动到法兰上相应的位置,完成图纸装配见图12。

图11 选择装配零件

图12 法兰装配图
结束语
通过使用比较,充分体现了该软件对于机械行业的了解,以实用为出发点,对CAD软件的现实需求,切身感觉到在功能方面CAXA电子图板比AutoCAD更加人性化,更全面、且符合中国人的操作习惯,总之一句话多快好省。随着CAXA电子图板软件的不断更新升级,功能也日益强大,如CAXA给我们的阀门设计带来极大的便利。
关于CAXA:CAXA是中国领先的CAD和PLM软件供应商。公司总部位于北京中关村,开发出系列化的CAD、CAPP、CAM、DNC、PDM、MPM等PLM软件产品和解决方案,已拥有46项著作权和45项专利。CAXA产品覆盖了制造业信息化设计、工艺、制造和管理四大领域,在航空航天、汽车及零部件、重型机械、通用机械、仪器仪表、工程机械、电子电器、机床模具、教育等各领域获得广泛的应用,拥有超过2.5万家企业用户和2000所院校用户,累计销售正版软件超过28万套。CAXA已经在全国建立起了35个营销和服务中心、300多家代理经销商、600多个教育培训中心。先后荣获中国软件行业20年 “金软件” 奖、中国十大创新软件产品奖、中国信息产业行业采购首选品牌奖等荣誉。()
(转载)



