摘 要: 本文介绍了德国VIPA 公司的PLC主控系统在条烟自动分拣系统中的应用优势。作为和西门子PLC兼容的控制系统,VIPA公司的产品技术特性上具有很强的竞争力,其高性价比,使用的便利性和可延续性已逐步得到用户的认可。
关键词:条烟自动分拣系统;VIPA PLC及触摸屏;Profibus现场总线;性价比;兼容性;
The application on logistics automatic sorting system of tobacco
Abstract: This article introduces the application advantages of VIPA PLC control system on cigarette automatic sorting system. As a compatible control system with Siemens PLC, VIPA’s product has very strong capability of competition on its technical characteristic. Its high performance/price ratio and convenience of employing have been approved by users gradually.
Key words: cigarette automatic sorting system; VIPA PLC and Touch Panels; Profibus; performance/price ratio; compatibility
1 前言
目前在烟草物流条烟自动分拣系统中大量使用西门子公司的控制产品,其中PLC编程软件STEP 7已被大多数工程技术人员熟悉应用。因此基于STEP 7开发环境下的PLC必定成为本行业的主流产品。其优点是广大的工程开发人员熟悉此编程,因此开发周期短,各种控制功能易于实现。在从项目成本及技术性能指标等因素上考虑,VIPA公司基于SPEED7技术的PLC控制系统与西门子PLC相比有一定优势和新特点。我公司在烟草物流自动分拣项目中,尝试引进了具有高性价比的德国VIPA公司的PLC产品,取得了很好的效果,也提高了我公司在承接项目中的技术指标和竞争力。
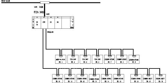
2 系统组成
在某市烟草物流自动分拣项目中,使用了德国VIPA 公司的300S PLC系列的控制系统,取得了很好的效果,其主要配置如下:
1)VIPA 317-4NE12 CPU及I/O模块作为主控系统,它自带有PROFIBUS DP主站接口;CP343以太网接口和PG/OP以太网编程口;MPI接口。
2)VIPA 200V 系列模块组成的3个远程DP从站,其中两个远程DP从站分别配置一块VIPA 250-1BA00高速计数模块,计数频率可达1MHz;这样组成的远程站结构紧凑,节省安装空间,系统运行可靠。
3)8个SIEMENS的ET200S作为远程DP从站;
4)2台DANFOSS公司的FC300系列变频器采用Profibus DP总线控制;
5)1台VIPA触摸屏TP 612C做操作员终端;
6)1个SIEMENS EM277接口模块用于与自动热缩包装机通讯。
系统结构方框图如图1所示

图1 系统结构方框图
该系统在现场经过不到一个月的调试,就已进入正常生产阶段。节省了安装调试的时间。整个控制系统运行状态正常,安全可靠。和以往使用过的SIEMENS S7 400系列PLC相比较,VIPA 300S 的PLC表现出很高的性能和运行速度,其技术指标可见一斑。从执行同等程序的循环周期来看,将近缩短了两倍。可见VIPA PLC在对程序循环周期有苛刻要求的环境下,有着绝对的优势。
2.1 主控系统,CPU 带有PROFIBUS DP主站:
主站配置如下:307稳压电源 :307-1EA00;:VIPA 317-4NE12;3.数字量输入模块(32DI):VIPA 321-1BL00;4.数字量输出模块(32DO):VIPA 322-1BL00。
其排列如图2,图3所示。

图2
图3
2.2 PROFIBUS DP远程从站:
3个VIPA 200V组成的从站系统控制主要输送设备和10个ET200S控制单机设备。其中VIPA 200V从站均采用:
1)DP现场总线从站接口模块VIPA 253-1DP01;
2)数字量输入模块(8DI)VIPA 221-1BF00;
3)数字量输出模块(8DO)VIPA 222-1BF00;
4)高速计数功能模块 VIPA 250-1BA00
组态示意图如图3所示。

图3 系统硬件组态图

图4 VIPA 200V DP从站图
VIPA 200V DP从站的用法和SIEMENS ET200S 类似,使用前只需安装VIPA 200V GSD组态文件即可。该总线从站模块支持DP-V0,DP-V1。每个站点最多可带32个模块,安装在35mm标准导轨上。与SIEMENS ET200S 区别的是VIPA 200V 从站无需单独配置PM-E电源模块。
2.3 2台DANFOSS公司的FC300系列变频器:
2台DANFOSS FC300 变频器通过Profibus DP 总线与PLC 通讯,对两台输送设备进行控制。
2.4 1台自动热缩包装机:
1台自动热缩包装机自带控制系统,由SIEMENS S7 200 PLC 控制。该设备通过SIEMENS EM277 接口模块挂接在Profibus DP 总线上,与上位PLC进行通讯和连锁控制。
2.5 1台VIPA TP612C触摸屏:
1台VIPA 触摸屏:VIPA 612-1BC01做操作员终端。该触摸屏通过以太网直接与PLC进行通讯。该触摸屏基于Windows CE 5.0 Professional Plus的操作系统,通讯接口除了支持串行接口RS232, RS485/RS422通讯,还提供以太网 TCP/IP; MPI; CANopen 和 Profibus-DP从站通讯, 支持与多种品牌PLC的通讯协议。它还带有USB_A/B接口。所有这些标准的接口,给用户提供了极高的灵活性和开放性,它保证了连通几乎所有领域的操作。VIPA HMI与西门子对比来看,VIPA 的HMI的色彩更丰富,灵敏度更高,软件使用更方便。它具有合金铝的外壳和90°自动螺丝锁扣的专利技术,使安装更快速便捷。实际外观如图5。

图5 VIPA TP612触摸屏
3 应用经验
在该项目的调试过程中,基本上和以往使用的西门子S7 系列PLC在编程组态和操作上无太大区别。VIPA PLC调试编程都可以使用STEP 7,或者使用VIPA公司自己的WinPLC7编程工具。以往西门子PLC使用的程序可以完全移植到VIPA PLC 上使用。同时,VIPA PLC除了兼容西门子自带的功能块外,而且还自带一些其它特殊的功能块可以方便调用。在硬件组态中,对于VIPA 200V的远程从站,只需安装相应的GSD 文件即可,使用方法和HW组态上和西门子ET200S相同。VIPA PLC内部集成了工作和装载存储器,无需外加程序存储卡即可运行,但CPU也带有标准的MMC卡接口,可用于保存程序和数据,及扩展工作存储器。这样就带来了使用上的方便性和灵活性。
在该分拣项目运行后,发现VIPA PLC 具有很高的性价比,兼容性及可靠性极高,可以推广使用到其他中型到大规模的应用场合。
作者简介:
1、姓名:楼冬梅 单位:昆明昆船物流信息产业有限公司 职务:物流电气部副主任 曾做过的项目:红河卷烟厂物流系统、玉溪卷烟厂物流系统等 简历:一直从事自动化物流系统的电气控制研究
2、姓名:洪超,单位:昆明昆船物流信息产业有限公司 职务:助理工程师 简历:一直从事自动化物流系统的电气控制研究和调试
3、姓名:徐清华,单位:昆明昆船物流信息产业有限公司 职务:物流电气部副主任 简历:一直从事自动化物流系统的电气控制研究
(转载)



