香菇烘烤工艺流程:烘干室温度升到35℃时,才可以将香菇入室烘干。烘干时必须先低温,然后逐渐升高温度。通常一小时增温1-3℃,最高温度应控制在70~75℃。一般要求35-40℃下烘烤6小时,40-60℃下烘烤8-10小时,60℃条件下烘烤2小时。要求设计方便工作人员随时设定温度,启动加热及停止加热。
根据要求,用触摸屏做上位机,S16M0T控制固态继电器加热器,温度检测用PT100加温度变送器。温度波动要求不高,直接采用模糊温度控制FTC指令。

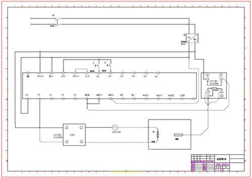
图1 电气原理图

图2 软件调试图

图3 配电安装近图

图4 配电安装图

图5 温度监视图

图6 温度监视图
试用感受
优点:
1、软件小巧,安装方便。
软件安装文件不足20M,系统兼容性强,安装快捷方便。不像其他品牌PLC软件,动辄上百兆的安装文件。
2、软件界面友好,操作方便。
软件菜单简洁明了,编程、注释输入方便。打开项目管理器后,程序项目分程序,表格,PLC硬件配置成树形目录,方便了编程操作。打开的主程序,子程序,中断程序,PLC硬件配置等在编辑区灵活切换。另外,在查看菜单中,打开PLC资源,可以在项目管理器中对海为PLC的内部资源一览无余,基本不必翻看技术手册。
3、软件集成了仿真功能。
编程后,无需其他设置,即可启动仿真。可视化的仿真界面,方便编程人员在没有联机的情况下检测程序中的问题。
4、强大的帮助文件
在编程过程中,若遇到指令应用问题,只要光标定该指令处,按F1,帮助功能就可以打开帮助文件,而且直接定位到相关的指令分析,并且配有海为工程师的例程,快速地帮助用户理解指令功能及应用。
(转载)



