众所周知,冶金行业是国民经济生产中的耗能大户和污染大户。在冶金行业生产过程中,风机和水泵的耗电量占到其生产成本的35%~45%。近几年,国家实行节能减排政策,针对冶金行业等耗能大户重点改造;通过几年的发展和总结,现国产高压变频器在风机水泵负载上的节能技术日趋成熟,节能减排效果明显。
在冶金行业有诸多设备具有变频应用前景和空间,但是其中广泛推广、被众多用户所接受的还主要集中在风机和循环水泵两类负载上。冶金行业典型应用负载有很多种,其中烧结主抽风机、高炉鼓风机及制氧压缩机的功率较大,其运行速度由不同工况而改变,节能改造效果明显。烧结主抽风机由于其工艺的节能空间大,很多EMC厂家对其改造很感兴趣。

图1 同步电机及主抽风机
一、背景
1.1烧结工艺过程
为了保证供给高炉的铁矿石中铁含量均匀,并且保证高炉的透气性,需要把选矿工艺产出的铁精矿制成10~25mm的块状原料铁矿粉。造块目前主要有两种方法:烧结法和球团法。两种方法所获得的块矿分别为烧结矿和球团矿。目前以抽风工艺烧结为多,烧结机分为带式和环式。
烧结工艺是指根据原料特性所选择的加工程序和烧结工艺制度,它对烧结生产的产量和质量有着直接而重要的影响。按照烧结过程的内在规律选择合适的工艺流程和操作制度,利用现代科学技术成果,强化烧结生产过程,能够获得先进的技术经济指标,保证实现高产、优质、低耗。本生产工艺流程有原料的接受,兑灰,拌合,筛分破碎及溶剂燃料的破碎筛分,配料,混料,点火,抽风烧结,抽风冷却,破碎筛分,除尘等环节组成。目前生产上广泛采用带式抽风烧结机生产烧结矿。
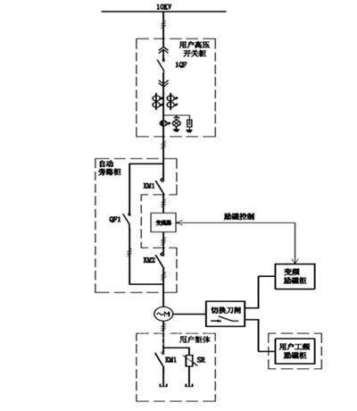
1.2节能改造
河北龙凤山铸业烧结厂烧结为110m2的带式烧结,该线配置了1台上海某电机厂10kV/5600kW有刷同步电机,负载为烧结主抽风机(图2);另外2台10kV/710kW异步电机,负载为烧结环冷风机,一用一备。目前主抽风机启动运行方式为工频异步降压软运行,同步投励。
该生产线的主抽风机为挡板调节,烧结机料厚在700mm左右,根据料层的透气性,主抽风机风门开度在70%左右,维持负压在-16 kPa,以保证成品率为准。环冷风机以保证冷却效果为准。此方案主要对烧结主抽风机进行变频改造和分析。

图2 主抽风机烟囱
二、改造方案
2.1 设备参数
电机额定电压10KV,额定功率5600KW,功率因素0.9,采用Y型接法。风机具体参数如下:

2.2 技术方案
根据现场负载情况,配置由汇川公司生产的高压变频器HD93-J100/7000-DN,该产品具有设计余量大、过载能力强,操作方便,质量可靠等优点。
主回路:采用一拖一自动旁路方案,见图3。
变频运行方式:1QF为用户侧高压开关柜,其中KM1、KM2为交流接触器、QF1
为真空断路器,KM1 KM2 与QF1之间有电气互锁。自动旁路柜变频励磁柜与变频器配套提供,电机及用户侧高压断路器1QF保留甲方原有设备。
工频运行时,KM1、KM2断开将励磁刀闸切换到工频励磁系统;QF1闭合,水阻软起装置投入工频回路,同步电机的启动、运行、停机过程按照原有逻辑进行。
变频运行时,QF1断开,变频励磁系统可以利用汇川技术专用同步励磁控制系统,KM1与KM2闭合,将励磁刀闸切换到变频励磁系统。变频器上电时,断路器1QF闭合,HD93高压变频器启动时,以电励磁同步机矢量控制方式拖动同步电机启动。
变频停机时,从现场向变频器下达“停机”命令,变频器驱动同步电机减速至完全停机,然后停止输出电压电流。最后在现场分断断路器1QF,由其辅助触点通知励磁装置灭磁,灭磁完成后关闭励磁装置电源。遇到故障时,变频器在停止电压电流输出的同时,立即分断上级断路器1QF,由变频器主控通知励磁装置灭磁,然后投到工频运行。

图3 主回路方案
f) 控制回路:在风机房操作箱实施远程调速、远程监控运行频率和输出电流等。

图4 汇川机旁操作箱

图5 高压变频现场运行照片

图6 现场调试与培训
三、结束语
HD93系列高压变频器为汇川技术针对大功率同步电机研发的专机,该系列高压变频器以独特的电励磁同步机矢量控制方式,很好地解决了大功率同步电机启动困难的问题,而且较同类厂家需要给电机加装轴编码器的运行方式,HD93系列在现场操作上变得更加方便简单。此次改造的烧结主抽风机良好运行,也有力证明了汇川技术的同步机矢量控制技术较同类厂家的控制方式更先进。目前,HD93系列高压变频器可用于冶金、电力、石化、矿山、建材和市政等领域;可以拖动的负载有风机水泵、皮带机、空压机等。
(转载)



