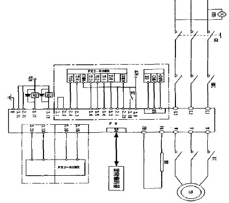
| 摘要 本文介绍了采用三菱FXZN一80MR可编程控制器设计的一个5层电梯的控制系统,利用变频器作为执行机构,检验电梯PLC控制系统的运行情况。 1 引言 电梯的电气系统由驱动系统和控制系统两部分组成。传统的电气控制系统采用的继电器逻辑控制由于触点多、故障率高、可靠性差、体积大等缺点,正逐渐被淘汰。电梯采用PLC一变频器控制,具有控制准确、调试方便、运行稳定、电路简单等特点。PLC控型电梯,其核心是一台PLC。目前电梯设计使用可编程控制器(PLC),要求控制系统能进行下列运作:根据轿厢所处位置及乘客所处层数,判定轿厢运行方向,保证轿厢平层时减速,将轿厢停在选定的楼层上;同时根据楼层的呼叫,顺路停车,自动开关门;另外在轿厢内外均要有信号灯显示电梯运行方向及楼层数。 2 电梯主控制电路及其工作原理 电梯中的曳引电动机的运行直接由变频器控制,变频器的输入控制信号由PLC提供。电路中,电动机作为终端设备给电梯提供驱动能力,同时是变频器的执行机构;变频器是中间设备,在电路中起上传下达的作用,其作用是根据PLC输出的指令要求来控制主机、门机及旋转编码器,然后又将执行结果反馈给PLC;PLC既是人与电梯的接口,又是电梯控制部分的核心,其作用是接收乘客输入的开关指令,然后将该命令传送给变频器;旋转编码器是电梯运行中的检测机构,其作用是检测电梯的运动行程。 2.1 电梯运行控制(设电机转为上行) 电梯运行培训见图1。 DYD为电源指示灯,当外接电源接通时指示灯发光。接通电源开关GK,按下启动按钮,电源接触器HKC接通,变频器有电源输入。KC为运行/停止开关(由运行控制器控制),电梯的运行类型由PLC来控制。其控制方式如下: Yl l、 Y 14 输出:电梯以额定速度上行(电梯正常状态下使用此速度); 2.2 旋转编码器工作原理 旋转编码器的作用是对电机的转动圈数进行计数,然后根据电机的转速与所计转动圈数计算出电梯的运动行程,从而实现对电梯运动行程的检测。 L=nZT
式中 : L-电梯运行行程(m);n-电机转速(r/s);Z-电机每转动一圈所对应的行程(m/r);T一电机运行的时间(s)。
![]() 图1 电梯主控制电路 3 PLC电气控制电路 PLC是本梯控制部分的核心。电梯的各种操作均由PLC来控制,本PLC采用共阳极继电器输出型,如图2所示。PLC输入/输出接口功能及保护作用说明如下: AJ :安 全 继电器开关,电梯运行时为闭合状态。 另外 , 图 中的“a一9”为LED七段显示器a段~9段的发光二极管,图中的“9”是应用于设有地下层的楼房的,当“9”有信号时指层器就会自动显示“负数”表示地下楼层,如:一IF、-ZF等。
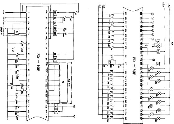
![]() 图2 PLC电气控制电路 变频器 : FR一55205一0,75K一CH; 4 结束语 本文采用三菱FXZN一80MR可编程控制器设计电梯的控制系统完成电梯的轿内指令、厅外召唤指令、楼层位置指示、平层换速控制、开门控制等控制任务。变频器在电梯中的应用,能够准确的执行PLC输出的指令,灵活地控制电机的运动状态。旋转编码器精确计算出电梯的运动行程,将信号反馈给变频器。利用变频器执行电梯PLC控制系统的运行,将PLC中的驱动程序与变频器的需求响应相结合,实现加载驱动。通过对我院机电一体化实验室电梯实验装置的实践设计与调试证明,将PLC可电气控制电路编程控制器和变频器结合可以有效地实现电梯控制系统 的测试运行,有利于PLC控制系统的设计、检测,具有良好的应用价值。 |
(转载)





