引言
高压同步电动机以其功率因数高、运行转速稳定、低转速设计简单等优点在高压大功率电气驱动领域有着大量的应用,如大功率风机、水泵、油泵等。对于大功率低速负载,如磨机、往复式压缩机等,使用多极同步电动机不仅可以提高系统功率因数,更可以省去变速机构,如齿轮变速箱,降低系统故障率,简化系统维护。
1 导语
由于同步电机物理过程复杂、控制难度高,以往的高压同步电机调速系统必须安装速度/位置传感器,增加了故障率,系统的可靠性较低。
单元串联多电平型变频器由于具有成本低,网侧功率因数高,网侧电流谐波小,输出电压波形正弦、基本无畸变,可靠性高等特点,在高压大容量异步电机变频调速领域取得了非常广泛的应用。将单元串联多电平型变频器应用于同步电动机将有效地提高同步电机变频调速系统的可靠性,降低同步电机变频改造的成本,提高节能改造带来的效益,同时也为单元串联多电平型变频器打开一个广阔的新市场。利德华福的技术人员经过大量的理论分析、计算机仿真和物理系统实验,解决了同步电机起动整步等关键问题,已于2006年4月底成功地将单元串联多电平型高压变频器应用于巨化股份公司合成氨厂的1000kw/6kv同步电动机上。以下将简要介绍实际应用中的主要技术问题。
2 同步电动机的工频起动投励过程
为了更好的说明同步电机的运行特点,先对同步电机的工频起动投励过程进行简要的介绍。
在电网电压直接驱动同步电机工频运行时,同步电动机的起动投励是一个比较复杂的过程。当同步电机电枢绕组高压合闸时,通过高压断路器的辅助触点告知同步电机的励磁装置准备投励。此时,励磁装置自动在同步电机的励磁绕组上接入一个灭磁电阻,以防止励磁绕组上感应出高压,同时在起动时提供一部分起动转矩。同步电机电枢绕组上电后,在起动绕组和连有灭磁电阻的励磁绕组的共同作用下,电机开始加速。当速度到达95%的同步转速时,励磁装置根据励磁绕组上的感应电压选择合适的时机投入励磁,电机被牵入同步速运行。如果同步电机的凸极效应较强、起动负载较低,则在励磁装置找到合适的投励时机之前,同步电机已经进入同步运行状态。在这种情况下,励磁装置将按照延时投励的准则进行投励,即高压合闸后15s强行投励。
3 变频器驱动同步电动机时的起动整步过程
用变频器驱动同步电机运行时,使用与上述方式不同的起动方式:带励起动。
在变频器向同步电机定子输出电压之前,即启动前,先由励磁装置向同步电机的励磁绕组通以一定的励磁电流,然后变频器再向同步电机的电枢绕组输出适当的电压,起动电机。
同步电机与普通异步电机运行上主要的区别是同步电机在运行时,电枢电压矢量与转子磁极位置之间的夹角必须在某一范围之内,否则将导致系统失步。在电机起动之初,这二者的夹角是任意的,必须经过适当的整步过程将这一夹角控制到一定的范围之内,然后电机进入稳定的同步运行状态。因此,起动整步问题是变频器驱动同步电动机运行的关键问题。
变频器驱动同步电动机的起动整步过程主要分为以下几个步骤:
(1)励磁装置投励。励磁系统向同步电机的励磁绕组通以一定的励磁电流,在同步电机转子上建立一定的磁场。
(2)变频器向同步电机的电枢绕组施加一定的直流电压,产生一定的定子电流。此时,在同步电机上产生一定的定子电流,并在定子上建立较强的磁场。转子在定、转子间电磁力的作用下开始转动,使转子磁极逐渐向定子磁极的异性端靠近。此时转子的转动方向可能与电机正常运行时的转向相同,也可能相反。
(3)变频器按照电机正常运行时的转动方向,缓慢旋转其施加在电枢绕组上的电压矢量。随着同步电机转子的转动和定子磁场的旋转,转子磁极将在某一时刻掠过定子的异性磁极,或者转子磁极加速追上旋转的定子磁极。此时,电机的转子磁极被较强的定子磁极可靠吸引,二者间的角度经过少量有阻尼的震荡后,逐渐趋于一个较小的常量。至此,同步电机进入同步运行状态,整步过程完成。
(4)变频器按照预先设定的加速度和v/f曲线(即磁通给定),调节输出电压,逐渐加速到给定频率。此时,同步电机的转子角逐渐拉大到某一常值,然后电机转子磁极在定子磁场的吸引下逐渐加速至期望转速,同步电机起动过程完成。
在同步电机的起动整步过程中,定、转子磁势大小的选择和各步骤间的切换是控制的关键问题。如果选择过低的定子磁场,则定子磁极无法在第一次经过转子的异性磁极时,将其可靠吸牢,此后转子经过同性磁极间斥力的反向加速作用,在下一次经过定子磁极时,二者将具有更大的相对速度,定子磁场更加无法有效牵引转子磁极,最终将导致起动整步失败。选择过大的定子磁场可能导致同步电机的定子铁心饱和,进一步导致变频器输出过电流,电机起动失败。
[DividePage:NextPage]
较为典型的同步电机起动过程如图1所示。

4 变频器驱动同步电动机的稳态运行与运行时的励磁调节
由于变频器驱动同步电机时使用无需安装速度/位置传感器的控制方法,而变频器输出波形为多电平pwm波形,与控制异步电机时的波形相同,因此在运行过程中,变频器可以完全等效于一个正弦电压源,无转矩脉动,具有较高的可靠性。
由于同步电机的无功电流仅在电机和变频器间流动,不进入电网,因而无须对电机的励磁电流进行精确的控制。一般可在电机运行的典型工况下,手动调节其励磁电流,使变频器的输出电流最小,输出功率因数近似为1,然后在先调速运行过程中维持该电流不变即可。对于需要在运行时实时调整励磁电流的工况,变频器可以实测其输出给同步电机的无功功率,向励磁装置下达励磁给定信号,调整励磁电流。
5 同步电动机的故障灭磁
在正常停机时,变频器先驱动同步电机减速至停机转速,然后停止向电机的电枢绕组输出电压。在该转速下,最大的励磁电流在同步电机定子侧感应的电压低于变频器输出侧的长时间耐受电压,因此在电机之后的自由滑行过程中,维持励磁电流不会对设备造成危害,不需要即时灭磁。
在遇到故障时,如果仅停止向其电枢绕组供电,而维持其励磁电流,则旋转中的同步电机将持续地向其定子侧发出三相交流电压,危害设备安全,并可能造成事故的扩大。因此在遇到严重故障需要停机时,变频器必须通知励磁装置进行灭磁。
同步电机灭磁的物理过程如下:
在灭磁之初,在励磁装置的作用下同步电机的励磁电流迅速下降,但由于同步电机的主磁通无法突变,在阻尼绕组(起动绕组)上随即感应出较大的电流,此时旋转中的同步电机向其定子机端(即变频器输出端)发出较高的三相交流电压。随后,阻尼绕组上的电流在阻尼绕组的内阻上逐步衰减为零,同步电机发出的定子电压也随之逐步衰减。这一衰减过程一般为数秒钟,因此变频器的输出端必须具有停机状态下承受短时过电压的能力。
[DividePage:NextPage]
6 巨化股份公司合成氨厂的现场应用情况简介
巨化股份公司合成氨厂始建于1959年,是浙江省重要的化肥生产基地和最大的甲醇、甲醛生产厂。此次进行变频改造的是尿素车间的1号co2活塞式压缩机,其相关参数如表1所示:

驱动压缩机的是一台1000kw/6kv同步电动机,其相关参数如表2所示:

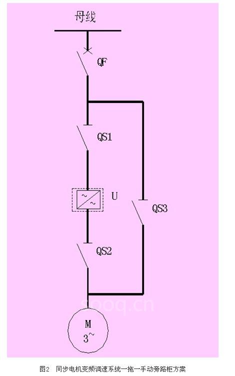
变频器选用利德华福 hasvert-s06/130同步电机变频调速系统,旁路方案选用一拖一手动旁路柜,如图2所示。

[DividePage:NextPage]
工频运行时,qs1、qs2断开,qs3闭合,同步电机的起动、运行、停车过程按照原有逻辑进行。
变频运行时,qs3断开,qs1、qs2闭合,变频器上电时,断路器qf闭合,经过约15s延时后,励磁装置向同步电机投入励磁电流,然后从现场向变频器下达“启动”命令,变频器按照预设的逻辑向同步电机输出电压,同步电机起动。
变频停机时,从现场向变频器下达“停机”命令,变频器驱动同步电机减速至停机频率,然后停止输出电压。最后在现场分断断路器qf,由其辅助触点通知励磁装置灭磁,灭磁完成后关闭励磁装置电源。
遇到故障时,变频器在停止电压输出的同时,立即分断断路器qf,由其辅助触点通知励磁装置立即灭磁。
7 结束语
单元串联多电平型变频器在同步电动机上应用的成功实现,扩展了高压变频器产业的应用领域,也扩大了国家能源节约政策的实现途径,为我国建设节约型社会提供了更多的技术保障。
(转载)



